комната в Санкт-Петербурге по адресу: Херсонская ул., 19

Background Main
Background Main
Background Main
Background Main
Background Main
Background Main
Background Main
Background Main
Background Main
Background Main
Background Main
Background Main
Background Main
Background Main
Background Main
Background Main
Background Main
Background Main
Background Main
Background Main
Background Main

2 550 000 ₽

Комната

154 м2

общая пл.

21.9 м2

жилая пл.

5/7

этаж

Санкт-Петербург, Херсонская ул., 19

M

Площадь Александра Невского

Пешком

5 мин. пеш.

Подробнее о квартире

Данный объект уже продан, но мы можем подобрать вам подобный.

Арт. 64910404
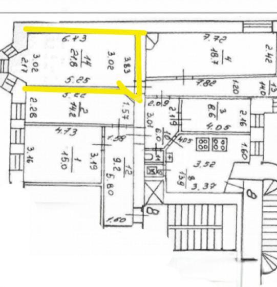
Вашему вниманию предлагается к продаже комната в малонаселённой четырёхкомнатной квартире в Центральном районе города Санкт-Петербурга
Комната сделана под студию, но без переносов мокрого места. В комнате полностью заменены полы и сделан качественный ремонт. Установлены кухонный гарнитур, плита и духовка. Есть вытяжка, также новому собственнику остается вся мебель, что видите на фотографиях . На общей кухне также есть свое место. Комната с хорошим ремонтом, заменены стеклопакеты, места общего пользования содержаться в чистоте и порядке в данный момент делается ремонт в местах общего пользования.
Рядом с домом детские сады, школы, одна из них спортивная. В 3-х минутах ходьбы детская поликлиника. В пешей доступности метро Площадь Восстания и площадь Александра Невского. До Невского проспекта 10 минут пешком. В 3-х минутах от дома Овсянниковский сквер, в 15 минутах Таврический парк. Рядом много детских площадок, аптеки, булочные, различные сетевые магазины.
Отказы получены. Вся цена в договоре. Прямая продажа. Показы по предварительной договорённости.

Видеообзор

Похожие объекты

комната в Санкт-Петербурге по адресу: Смоленская ул., 31/20
комната в Санкт-Петербурге по адресу: Смоленская ул., 31/20
комната в Санкт-Петербурге по адресу: Смоленская ул., 31/20
комната в Санкт-Петербурге по адресу: Смоленская ул., 31/20
комната в Санкт-Петербурге по адресу: Смоленская ул., 31/20
комната в Санкт-Петербурге по адресу: Смоленская ул., 31/20

Продается комната

Санкт-Петербург, Смоленская ул., 31/20

Комната

723.7 м2

общая пл.

17.5 м2

жилая пл.

2/6

этаж

Metro

Фрунзенская

Пешком

8 мин. пеш.

4 700 000 ₽

комната в Санкт-Петербурге по адресу: Донская ул., 19, литера А
комната в Санкт-Петербурге по адресу: Донская ул., 19, литера А
комната в Санкт-Петербурге по адресу: Донская ул., 19, литера А
комната в Санкт-Петербурге по адресу: Донская ул., 19, литера А
комната в Санкт-Петербурге по адресу: Донская ул., 19, литера А
комната в Санкт-Петербурге по адресу: Донская ул., 19, литера А

Продается комната

Санкт-Петербург, Донская ул., 19, литера А

Комната

97 м2

общая пл.

12.6 м2

жилая пл.

3/4

этаж

Metro

Василеостровская

Пешком

15 мин. пеш.

1 970 000 ₽

комната в Санкт-Петербурге по адресу: Каменноостровский проспект, 54/31, литера А
комната в Санкт-Петербурге по адресу: Каменноостровский проспект, 54/31, литера А
комната в Санкт-Петербурге по адресу: Каменноостровский проспект, 54/31, литера А
комната в Санкт-Петербурге по адресу: Каменноостровский проспект, 54/31, литера А
комната в Санкт-Петербурге по адресу: Каменноостровский проспект, 54/31, литера А
комната в Санкт-Петербурге по адресу: Каменноостровский проспект, 54/31, литера А

Продается комната

Санкт-Петербург, Каменноостровский проспект, 54/31, литера А

Комната

231.3 м2

общая пл.

26.7 м2

жилая пл.

4/6

этаж

Metro

Петроградская

Пешком

7 мин. пеш.

5 100 000 ₽

Показать еще

Политика конфиденциальности Оплата

ОГРНИП 318784700042521

© 2026 Агентство недвижимости «ЭВО»