однокомнатная квартира в Санкт-Петербурге по адресу: Русановская ул., 11, литера А

Background Main
Background Main
Background Main
Background Main
Background Main
Background Main
Background Main
Background Main
Background Main
Background Main
Background Main
Background Main
Background Main
Background Main
Background Main
Background Main
Background Main

4 650 000 ₽

1-комн.

квартира

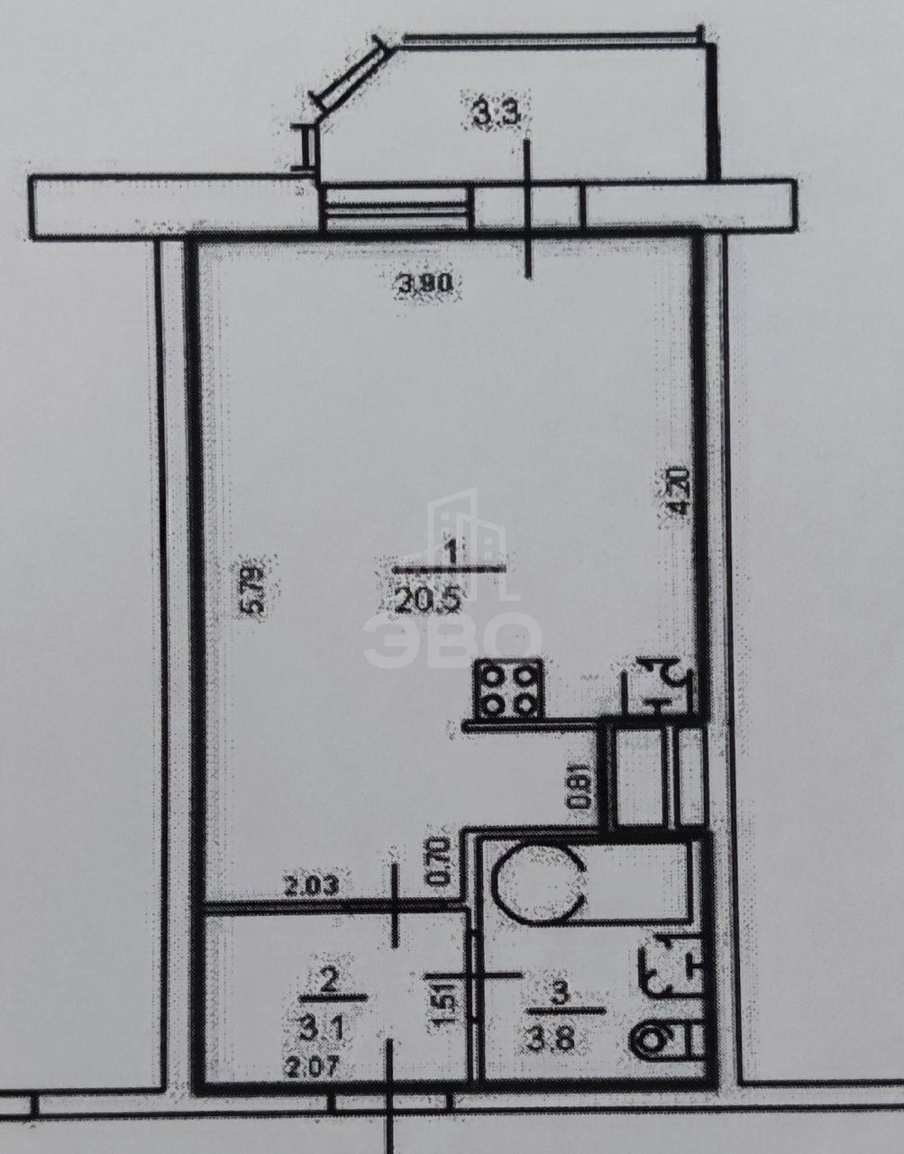
27.40 м2

общая пл.

20.43 м2

жилая пл.

10/24

этаж

Санкт-Петербург, Русановская ул., 11, литера А

M

Ломоносовская

На транспорте

20 мин. тр.

Подробнее о квартире

Данный объект уже продан, но мы можем подобрать вам подобный.

Арт. 55941472 Предлагается для продажи уютная и теплая квартира-студия в ЖК "Ласточкино гнездо" от надежного застройщика "ЛенСпецСМУ".
Квартира в отличном состоянии, сделан дизайнерский ремонт. Все материалы для ремонта приобретены собственником самостоятельно, работы осуществлены подрядной организацией не от застройщика.
На стенах декоративная шпатлевка, на полу высокопрочный ламинат, в санузле плитка.
Удобная планировка с большой жилой зоной, площадью 20 кв. м, вместительным коридором, отдельной нишей для холодильника, комфортной ванной комнатой, 3,8 кв. м. Высота потолка 2,8 м.
Просторная лоджия, площадью 3,3 кв. м, с остеклением в пол позволит насладиться прекрасным видом на закат и Вантовый мост. Также пространство здесь можно обустроить под рабочую зону.

Дом новый с закрытым двором, бесшумные лифты Otis, видеонаблюдение, консьерж, отзывчивая и компетентная управляющая компания, невысокие коммунальные платежи.

Инфраструктура района хорошо развита: в непосредственной близости школа №690 с хорошими отзывами, детские садики, поликлиника, продуктовые магазины, салоны красоты и многое другое в шаговой доступности.

ЖК расположен недалеко от Октябрьской набережной. Удобная транспортная развязка позволит быстро добраться до центра города или отправиться загород, до КАД 5 минут на машине.

Прямая продажа. Прозрачная история собственности. Полную стоимость показываем. Подходит под ипотеку. Окажем содействие покупателю без агента.

Квартира подойдёт как для жизни, так и для сдачи в аренду.

Звоните заранее и записывайтесь на просмотр!

Похожие объекты

однокомнатная квартира в Санкт-Петербурге по адресу: Уральская ул., 2
однокомнатная квартира в Санкт-Петербурге по адресу: Уральская ул., 2
однокомнатная квартира в Санкт-Петербурге по адресу: Уральская ул., 2
однокомнатная квартира в Санкт-Петербурге по адресу: Уральская ул., 2
однокомнатная квартира в Санкт-Петербурге по адресу: Уральская ул., 2
однокомнатная квартира в Санкт-Петербурге по адресу: Уральская ул., 2

Продается однокомнатная квартира

Санкт-Петербург, Уральская ул., 2

1-комн.

квартира

50.3 м2

общая пл.

16.35 м2

жилая пл.

9/10

этаж

Metro

Василеостровская

Пешком

15 мин. пеш.

20 000 000 ₽

однокомнатная квартира в Санкт-Петербурге по адресу: Плесецкая ул., 2, строение 1
однокомнатная квартира в Санкт-Петербурге по адресу: Плесецкая ул., 2, строение 1
однокомнатная квартира в Санкт-Петербурге по адресу: Плесецкая ул., 2, строение 1
однокомнатная квартира в Санкт-Петербурге по адресу: Плесецкая ул., 2, строение 1
однокомнатная квартира в Санкт-Петербурге по адресу: Плесецкая ул., 2, строение 1
однокомнатная квартира в Санкт-Петербурге по адресу: Плесецкая ул., 2, строение 1

Продается однокомнатная квартира

Санкт-Петербург, Плесецкая ул., 2, строение 1

1-комн.

квартира

47.9 м2

общая пл.

12.8 м2

жилая пл.

7/13

этаж

Metro

Комендантский проспект

На транспорте

30 мин. тр.

16 000 000 ₽

двухкомнатная квартира в Санкт-Петербурге по адресу: Матроса Железняка ул., 55, литера А
двухкомнатная квартира в Санкт-Петербурге по адресу: Матроса Железняка ул., 55, литера А
двухкомнатная квартира в Санкт-Петербурге по адресу: Матроса Железняка ул., 55, литера А
двухкомнатная квартира в Санкт-Петербурге по адресу: Матроса Железняка ул., 55, литера А
двухкомнатная квартира в Санкт-Петербурге по адресу: Матроса Железняка ул., 55, литера А
двухкомнатная квартира в Санкт-Петербурге по адресу: Матроса Железняка ул., 55, литера А

Продается двухкомнатная квартира

Санкт-Петербург, Матроса Железняка ул., 55, литера А

2-комн.

квартира

44.6 м2

общая пл.

28.9 м2

жилая пл.

3/5

этаж

Metro

Пионерская

Пешком

15 мин. пеш.

8 800 000 ₽

Показать еще

Политика конфиденциальности Оплата

ОГРНИП 318784700042521

© 2026 Агентство недвижимости «ЭВО»