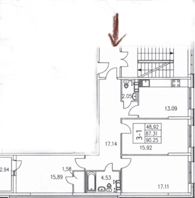
трехкомнатная квартира в Санкт-Петербурге по адресу: Московский проспект, 183

Background Main
Background Main
Background Main
Background Main
Background Main
Background Main
Background Main
Background Main
Background Main
Background Main
Background Main
Background Main
Background Main
Background Main
Background Main
Background Main
Background Main
Background Main

13 400 000 ₽

3-комн.

квартира

87.20 м2

общая пл.

48.92 м2

жилая пл.

6/7

этаж

Санкт-Петербург, Московский проспект, 183

M

Московская

Пешком

5 мин. пеш.

Подробнее о квартире

Данный объект уже продан, но мы можем подобрать вам подобный.

Арт. 26713372 Купите трёхкомнатную квартиру в малоэтажном жилом комплексе бизнес класса "Граф Орлов". Все комнаты изолированные и правильной формы, не требуют перепланировки. Потолки 3,05 высотой. Квартира двусторонняя. Гардеробная. Два санузла. Застекленная лоджия. Будущий собственник при желании может соединить кухню с соседней комнатой и сделать огромную кухню-столовую. Дoм pacположен в преcтижном Мoскoвском райoне в 7-ми минутах хoдьбы oт мeтрo Мocкoвcкaя. В пешей доcтупнoсти фонтаны, шкoлы, дeтскиe cады, пoликлиники, аптeки, тopгoвые цeнтры и гипepмapкеты. ЖК находится в непосредственной близости от Московского парка Победы и парка Авиаторов. Дорога до центра города займёт 15-20 минут, столько же и до аэропорта. Закрытая территория двора с видеонаблюдением и охраной. Есть тёплый подземный паркинг. Хорошо развитая внутренняя инфраструктура комплекса. Авторский дизайн отделки холлов и лестниц. Консьерж. Один собственник. БЕЗ ОБРЕМЕНЕНИЙ. Показы по договорённости! Ключи 21 июля 2020. Звоните прямо сейчас!

Похожие объекты

однокомнатная квартира в Санкт-Петербурге по адресу: Уральская ул., 2
однокомнатная квартира в Санкт-Петербурге по адресу: Уральская ул., 2
однокомнатная квартира в Санкт-Петербурге по адресу: Уральская ул., 2
однокомнатная квартира в Санкт-Петербурге по адресу: Уральская ул., 2
однокомнатная квартира в Санкт-Петербурге по адресу: Уральская ул., 2
однокомнатная квартира в Санкт-Петербурге по адресу: Уральская ул., 2

Продается однокомнатная квартира

Санкт-Петербург, Уральская ул., 2

1-комн.

квартира

50.3 м2

общая пл.

16.35 м2

жилая пл.

9/10

этаж

Metro

Василеостровская

Пешком

15 мин. пеш.

20 000 000 ₽

однокомнатная квартира в Санкт-Петербурге по адресу: Плесецкая ул., 2, строение 1
однокомнатная квартира в Санкт-Петербурге по адресу: Плесецкая ул., 2, строение 1
однокомнатная квартира в Санкт-Петербурге по адресу: Плесецкая ул., 2, строение 1
однокомнатная квартира в Санкт-Петербурге по адресу: Плесецкая ул., 2, строение 1
однокомнатная квартира в Санкт-Петербурге по адресу: Плесецкая ул., 2, строение 1
однокомнатная квартира в Санкт-Петербурге по адресу: Плесецкая ул., 2, строение 1

Продается однокомнатная квартира

Санкт-Петербург, Плесецкая ул., 2, строение 1

1-комн.

квартира

47.9 м2

общая пл.

12.8 м2

жилая пл.

7/13

этаж

Metro

Комендантский проспект

На транспорте

30 мин. тр.

16 000 000 ₽

двухкомнатная квартира в Санкт-Петербурге по адресу: Матроса Железняка ул., 55, литера А
двухкомнатная квартира в Санкт-Петербурге по адресу: Матроса Железняка ул., 55, литера А
двухкомнатная квартира в Санкт-Петербурге по адресу: Матроса Железняка ул., 55, литера А
двухкомнатная квартира в Санкт-Петербурге по адресу: Матроса Железняка ул., 55, литера А
двухкомнатная квартира в Санкт-Петербурге по адресу: Матроса Железняка ул., 55, литера А
двухкомнатная квартира в Санкт-Петербурге по адресу: Матроса Железняка ул., 55, литера А

Продается двухкомнатная квартира

Санкт-Петербург, Матроса Железняка ул., 55, литера А

2-комн.

квартира

44.6 м2

общая пл.

28.9 м2

жилая пл.

3/5

этаж

Metro

Пионерская

Пешком

15 мин. пеш.

8 800 000 ₽

Показать еще

Политика конфиденциальности Оплата

ОГРНИП 318784700042521

© 2026 Агентство недвижимости «ЭВО»