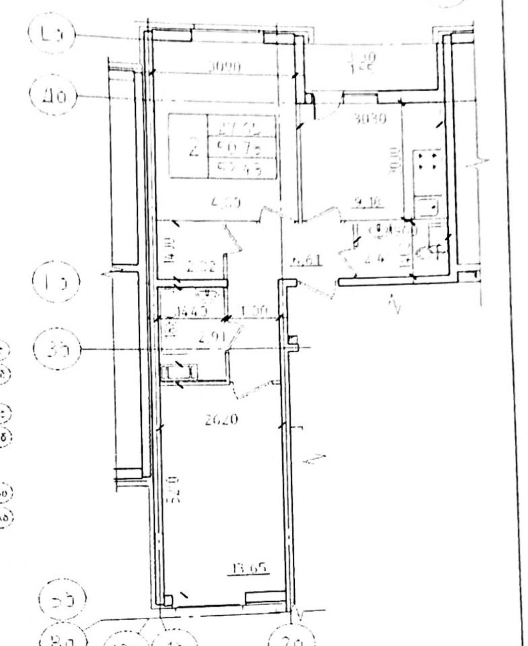
двухкомнатная квартира в Санкт-Петербурге по адресу: Михайловская ул., 51

Background Main
Background Main
Background Main
Background Main
Background Main
Background Main
Background Main
Background Main
Background Main
Background Main
Background Main
Background Main
Background Main
Background Main
Background Main
Background Main
Background Main
Background Main
Background Main

7 200 000 ₽

2-комн.

квартира

50.70 м2

общая пл.

32 м2

жилая пл.

9/9

этаж

Санкт-Петербург, Михайловская ул., 51

M

Автово

На транспорте

40 мин. тр.

Подробнее о квартире

Данный объект уже продан, но мы можем подобрать вам подобный.

Арт. 60146741 В прекрасном экологически чистом районе в новом ЖК Ломоносовъ продаётся уютная 2 комнатная квартира. Общая площадь 50.7 кв.м площадь комнат 16+16 кв.м. Просторная кухня правильной квадратной формы (без вентиляционного блока – выведен в туалет) с выходом на панорамный балкон. Раздельный сан узел, в туалете отведённое место под стиральную и сушильную машины. В прихожей – просторная гардеробная комната. Квартира очень светлая, сухая. Исправлены все недочёты от застройщика – протечек нет, новые радиаторы. Состояние – отличное! В парадной уже работают лифты, подключён домофон.
Благоустроенные дворы – современные детские площадки. В шаговой доступности парк Ораниенбаум, лесной массив , озеро. Идеальное место для семьи!
Вся инфраструктура рядом – магазины, аптеки, кафе.
Не переуступка!!! Право собственности оформлено. Полная стоимость в договоре! Обременений нет, никто не прописан, использовался материнский капитал (доля выделена). Подходит под ипотеку любого банка.
ЗВОНИТЕ! Все подробности по телефону. Показы по договоренности.

Похожие объекты

однокомнатная квартира в Санкт-Петербурге по адресу: Уральская ул., 2
однокомнатная квартира в Санкт-Петербурге по адресу: Уральская ул., 2
однокомнатная квартира в Санкт-Петербурге по адресу: Уральская ул., 2
однокомнатная квартира в Санкт-Петербурге по адресу: Уральская ул., 2
однокомнатная квартира в Санкт-Петербурге по адресу: Уральская ул., 2
однокомнатная квартира в Санкт-Петербурге по адресу: Уральская ул., 2

Продается однокомнатная квартира

Санкт-Петербург, Уральская ул., 2

1-комн.

квартира

50.3 м2

общая пл.

16.35 м2

жилая пл.

9/10

этаж

Metro

Василеостровская

Пешком

15 мин. пеш.

20 000 000 ₽

однокомнатная квартира в Санкт-Петербурге по адресу: Плесецкая ул., 2, строение 1
однокомнатная квартира в Санкт-Петербурге по адресу: Плесецкая ул., 2, строение 1
однокомнатная квартира в Санкт-Петербурге по адресу: Плесецкая ул., 2, строение 1
однокомнатная квартира в Санкт-Петербурге по адресу: Плесецкая ул., 2, строение 1
однокомнатная квартира в Санкт-Петербурге по адресу: Плесецкая ул., 2, строение 1
однокомнатная квартира в Санкт-Петербурге по адресу: Плесецкая ул., 2, строение 1

Продается однокомнатная квартира

Санкт-Петербург, Плесецкая ул., 2, строение 1

1-комн.

квартира

47.9 м2

общая пл.

12.8 м2

жилая пл.

7/13

этаж

Metro

Комендантский проспект

На транспорте

30 мин. тр.

16 000 000 ₽

двухкомнатная квартира в Санкт-Петербурге по адресу: Матроса Железняка ул., 55, литера А
двухкомнатная квартира в Санкт-Петербурге по адресу: Матроса Железняка ул., 55, литера А
двухкомнатная квартира в Санкт-Петербурге по адресу: Матроса Железняка ул., 55, литера А
двухкомнатная квартира в Санкт-Петербурге по адресу: Матроса Железняка ул., 55, литера А
двухкомнатная квартира в Санкт-Петербурге по адресу: Матроса Железняка ул., 55, литера А
двухкомнатная квартира в Санкт-Петербурге по адресу: Матроса Железняка ул., 55, литера А

Продается двухкомнатная квартира

Санкт-Петербург, Матроса Железняка ул., 55, литера А

2-комн.

квартира

44.6 м2

общая пл.

28.9 м2

жилая пл.

3/5

этаж

Metro

Пионерская

Пешком

15 мин. пеш.

8 800 000 ₽

Показать еще

Политика конфиденциальности Оплата

ОГРНИП 318784700042521

© 2026 Агентство недвижимости «ЭВО»