однокомнатная квартира в Санкт-Петербурге по адресу: Красуцкого ул., 25

Background Main
Background Main
Background Main
Background Main
Background Main
Background Main
Background Main
Background Main
Background Main
Background Main
Background Main
Background Main

12 000 000 ₽

1-комн.

квартира

52.70 м2

общая пл.

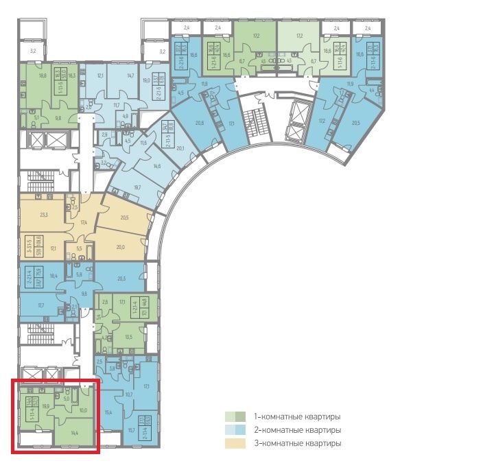
14.4 м2

жилая пл.

2/10

этаж

Санкт-Петербург, Красуцкого ул., 25

M

Балтийская

Пешком

5 мин. пеш.

Подробнее о квартире

Данный объект уже продан, но мы можем подобрать вам подобный.

Арт. 45401339 Продаётся большая 1-к квартира (евродвушка) в ЖК Галактика Pro площадью 52,7 кв.м. (корпус 4.15, подъезд 4). Сдача дома в конце 2021 года.

Квартира полностью выплачена, без обременений, в договоре показываем ПОЛНУЮ стоимость.

Удачная планировка с огромной кухней-гостиной 19,9 кв.м. с двумя окнами, застекленной лоджией 5,6 кв.м. и просторной спальней 14,4 кв.м. Окна квартиры выходят в тихий закрытый двор без машин. Квартира ориентирована на запад и север - солнце будет во второй половине дня.

Жилой комплекс расположен в 5-ти минутной шаговой доступности от м. Фрунзенская и Балтийская.

Один взрослый собственник, подходит под ипотеку.

Похожие объекты

однокомнатная квартира в Санкт-Петербурге по адресу: Уральская ул., 2
однокомнатная квартира в Санкт-Петербурге по адресу: Уральская ул., 2
однокомнатная квартира в Санкт-Петербурге по адресу: Уральская ул., 2
однокомнатная квартира в Санкт-Петербурге по адресу: Уральская ул., 2
однокомнатная квартира в Санкт-Петербурге по адресу: Уральская ул., 2
однокомнатная квартира в Санкт-Петербурге по адресу: Уральская ул., 2

Продается однокомнатная квартира

Санкт-Петербург, Уральская ул., 2

1-комн.

квартира

50.3 м2

общая пл.

16.35 м2

жилая пл.

9/10

этаж

Metro

Василеостровская

Пешком

15 мин. пеш.

20 000 000 ₽

однокомнатная квартира в Санкт-Петербурге по адресу: Плесецкая ул., 2, строение 1
однокомнатная квартира в Санкт-Петербурге по адресу: Плесецкая ул., 2, строение 1
однокомнатная квартира в Санкт-Петербурге по адресу: Плесецкая ул., 2, строение 1
однокомнатная квартира в Санкт-Петербурге по адресу: Плесецкая ул., 2, строение 1
однокомнатная квартира в Санкт-Петербурге по адресу: Плесецкая ул., 2, строение 1
однокомнатная квартира в Санкт-Петербурге по адресу: Плесецкая ул., 2, строение 1

Продается однокомнатная квартира

Санкт-Петербург, Плесецкая ул., 2, строение 1

1-комн.

квартира

47.9 м2

общая пл.

12.8 м2

жилая пл.

7/13

этаж

Metro

Комендантский проспект

На транспорте

30 мин. тр.

16 000 000 ₽

двухкомнатная квартира в Санкт-Петербурге по адресу: Матроса Железняка ул., 55, литера А
двухкомнатная квартира в Санкт-Петербурге по адресу: Матроса Железняка ул., 55, литера А
двухкомнатная квартира в Санкт-Петербурге по адресу: Матроса Железняка ул., 55, литера А
двухкомнатная квартира в Санкт-Петербурге по адресу: Матроса Железняка ул., 55, литера А
двухкомнатная квартира в Санкт-Петербурге по адресу: Матроса Железняка ул., 55, литера А
двухкомнатная квартира в Санкт-Петербурге по адресу: Матроса Железняка ул., 55, литера А

Продается двухкомнатная квартира

Санкт-Петербург, Матроса Железняка ул., 55, литера А

2-комн.

квартира

44.6 м2

общая пл.

28.9 м2

жилая пл.

3/5

этаж

Metro

Пионерская

Пешком

15 мин. пеш.

8 800 000 ₽

Показать еще

Политика конфиденциальности Оплата

ОГРНИП 318784700042521

© 2026 Агентство недвижимости «ЭВО»