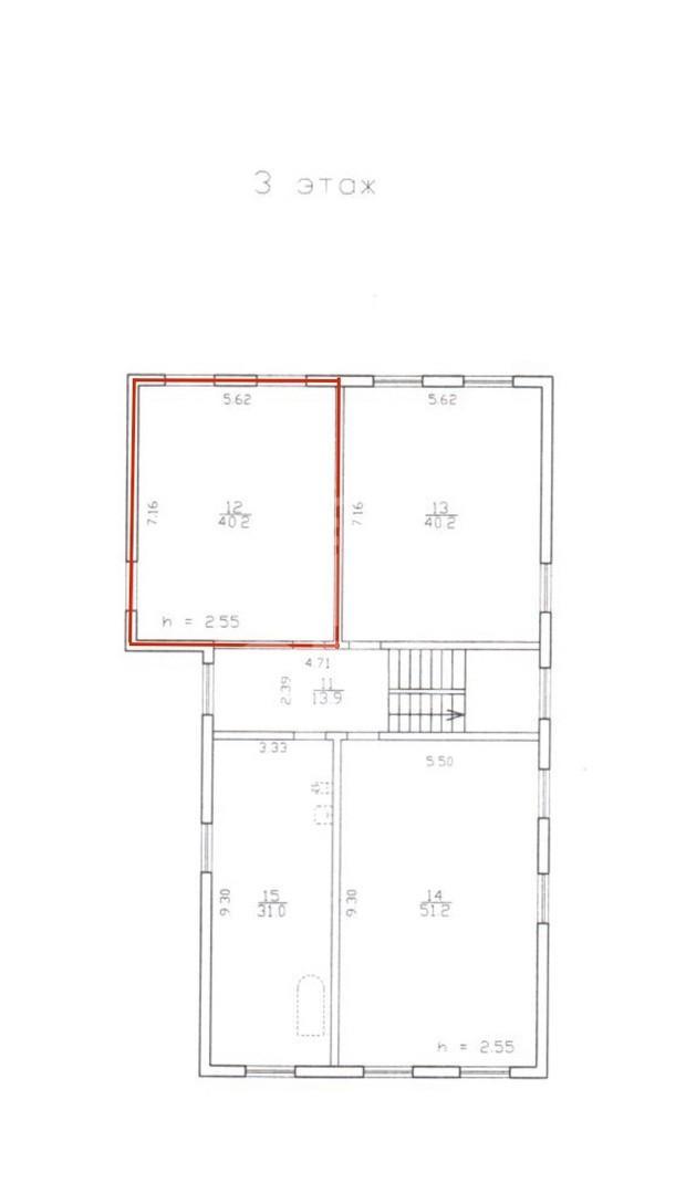
двухкомнатная квартира в Санкт-Петербурге по адресу: Константиновский пер., 15, литера А

Background Main
Background Main
Background Main
Background Main
Background Main
Background Main
Background Main
Background Main
Background Main
Background Main
Background Main
Background Main
Background Main
Background Main
Background Main

3 300 000 ₽

2-комн.

квартира

40.2 м2

общая пл.

26 м2

жилая пл.

3/3

этаж

Санкт-Петербург, Константиновский пер., 15, литера А

M

Проспект Ветеранов

На транспорте

40 мин. тр.

Подробнее о квартире

Данный объект уже продан, но мы можем подобрать вам подобный.

Арт. 47933457
Предлагается к продаже 2-к квартира с земельным участок и возможностью загородной жизни в черте г. СПб (городская прописка)!


ОБ ОБЪЕКТЕ:
- Адрес: СПб, Горелово, Константиновский переулок, дом 15, лит А
- 3/3 этаж многоквартирного жилого дома 2013 года постройки. Дом индивидуального проекта, материал стен - газобетон. На этаже 4 квартиры 
- Квартира состоит из 2-х комнат, планировка изолированная, С/У-Совмещённый
- Общая площадь квартиры 40.2 кв.м., высота потолков 2.55 м.
- Отопление - электрические конвекторы, вода - скважина, горячая - бойлер, канализация - локальная. Оплачивается только электричество, за счёт этого низкая стоимость коммунальных платежей 
- Мебель и техника остаётся 


ДОСТУПНОСТЬ И ИНФРАСТРУКТУРА:
- Удобный выезд на КАД 
- В пешей доступности ж/д станция "Горелово", автобусная остановка с отправлением до ближайших станций метро
- В близлежащей доступности вся инфраструктура Горелово: школы, детские сады, медучереждения, магазины и т.д. 


ЮР. ЧАСТЬ: 
- Прямая продажа
- Два взрослых собственника 
- Долевая собственность. Отказы от сособственников получены
- Прописка СПб. На данный момент никто не прописан 
- Полная стоимость в договоре 
- Без обременений и задолженностей
- Ипотека не подходит

Видеообзор

Похожие объекты

однокомнатная квартира в Санкт-Петербурге по адресу: Боровая ул., 21
однокомнатная квартира в Санкт-Петербурге по адресу: Боровая ул., 21
однокомнатная квартира в Санкт-Петербурге по адресу: Боровая ул., 21
однокомнатная квартира в Санкт-Петербурге по адресу: Боровая ул., 21
однокомнатная квартира в Санкт-Петербурге по адресу: Боровая ул., 21
однокомнатная квартира в Санкт-Петербурге по адресу: Боровая ул., 21

Продается однокомнатная квартира

Санкт-Петербург, Боровая ул., 21

1-комн.

квартира

37.9 м2

общая пл.

20.6 м2

жилая пл.

6/6

этаж

Metro

Лиговский проспект

Пешком

12 мин. пеш.

10 000 000 ₽

однокомнатная квартира в Санкт-Петербурге по адресу: Маршала Жукова проспект, 30, к 2, литера В
однокомнатная квартира в Санкт-Петербурге по адресу: Маршала Жукова проспект, 30, к 2, литера В
однокомнатная квартира в Санкт-Петербурге по адресу: Маршала Жукова проспект, 30, к 2, литера В
однокомнатная квартира в Санкт-Петербурге по адресу: Маршала Жукова проспект, 30, к 2, литера В
однокомнатная квартира в Санкт-Петербурге по адресу: Маршала Жукова проспект, 30, к 2, литера В
однокомнатная квартира в Санкт-Петербурге по адресу: Маршала Жукова проспект, 30, к 2, литера В

Продается однокомнатная квартира

Санкт-Петербург, Маршала Жукова проспект, 30, к 2, литера В

1-комн.

квартира

27.5 м2

общая пл.

14.9 м2

жилая пл.

4/12

этаж

Пешком

8 мин. пеш.

6 700 000 ₽

студия в Санкт-Петербурге по адресу: Заречная ул., 13, к 1, строение 1
студия в Санкт-Петербурге по адресу: Заречная ул., 13, к 1, строение 1
студия в Санкт-Петербурге по адресу: Заречная ул., 13, к 1, строение 1
студия в Санкт-Петербурге по адресу: Заречная ул., 13, к 1, строение 1
студия в Санкт-Петербурге по адресу: Заречная ул., 13, к 1, строение 1
студия в Санкт-Петербурге по адресу: Заречная ул., 13, к 1, строение 1

Продается студия

Санкт-Петербург, Заречная ул., 13, к 1, строение 1

Студия

27.1 м2

общая пл.

19.7 м2

жилая пл.

2/19

этаж

Metro

Парнас

Пешком

12 мин. пеш.

6 500 000 ₽

Показать еще

Политика конфиденциальности Оплата

ОГРНИП 318784700042521

© 2026 Агентство недвижимости «ЭВО»