двухкомнатная квартира в Санкт-Петербурге по адресу: Исполкомская ул., 17, к 1

Background Main
Background Main
Background Main
Background Main
Background Main
Background Main
Background Main
Background Main
Background Main
Background Main
Background Main
Background Main
Background Main
Background Main
Background Main
Background Main
Background Main
Background Main
Background Main
Background Main
Background Main

22 999 000 ₽

2-комн.

квартира

84.40 м2

общая пл.

37 м2

жилая пл.

4/9

этаж

Санкт-Петербург, Исполкомская ул., 17, к 1

M

Площадь Александра Невского

Пешком

10 мин. пеш.

Подробнее о квартире

Данный объект уже продан, но мы можем подобрать вам подобный.

Арт. 59808365 2х комнатная (3-евро) квартира по очень интересной цене.
Показы по договоренности, ключи у агента.

ЖК Дипломат - клубный дом на 176 квартир, 5 квартир на этаже. Закрытая территория, видеонаблюдение, консьерж, охранник, мастер-разнорабочий, дворник, диспетчер.

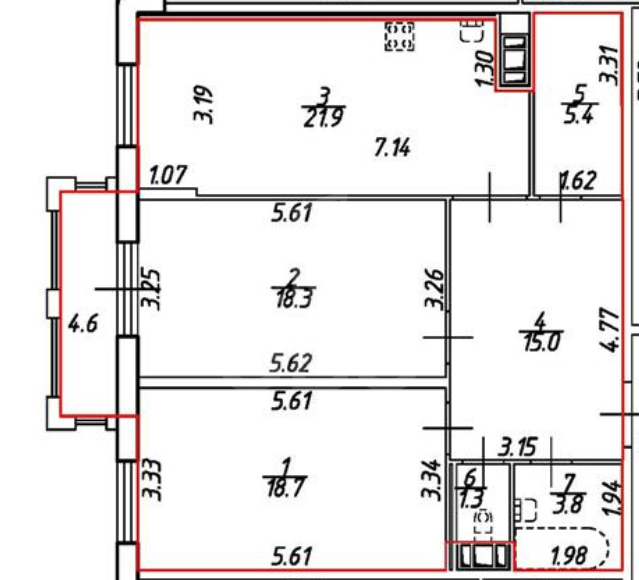
Общая площадь 84.4 кв.м., высота потолков 3 метра!
Раздельные комнаты 18.3+18.7 кв.м.
кухня-гостиная 21.9 кв.м.
прихожая 15 кв.м. (откуда можно войти во все помещения квартиры)
гардеробная 5.4 кв.м.
балкон 4.6 кв.м.

По документам:
2 взрослых собственника
ипотека (обременение) Сбербанка
материнский капитал не был использован
долгов за КУ нет
зарегистрирован один собственник (выписывается), лично будет на сделке

По сделке:
прямая продажа
документы готовы
возможна покупка в ипотеку (подскажем, расскажем)
сопровождение со стороны агентства недвижимости ЭВО

Похожие объекты

четырехкомнатная квартира в Санкт-Петербурге по адресу: Малодетскосельский проспект, 40
четырехкомнатная квартира в Санкт-Петербурге по адресу: Малодетскосельский проспект, 40
четырехкомнатная квартира в Санкт-Петербурге по адресу: Малодетскосельский проспект, 40
четырехкомнатная квартира в Санкт-Петербурге по адресу: Малодетскосельский проспект, 40
четырехкомнатная квартира в Санкт-Петербурге по адресу: Малодетскосельский проспект, 40
четырехкомнатная квартира в Санкт-Петербурге по адресу: Малодетскосельский проспект, 40

Продается четырехкомнатная квартира

Санкт-Петербург, Малодетскосельский проспект, 40

4-комн.

квартира

138.8 м2

общая пл.

74.3 м2

жилая пл.

6/7

этаж

Пешком

9 мин. пеш.

55 500 000 ₽

однокомнатная квартира в Санкт-Петербурге по адресу: Уральская ул., 2
однокомнатная квартира в Санкт-Петербурге по адресу: Уральская ул., 2
однокомнатная квартира в Санкт-Петербурге по адресу: Уральская ул., 2
однокомнатная квартира в Санкт-Петербурге по адресу: Уральская ул., 2
однокомнатная квартира в Санкт-Петербурге по адресу: Уральская ул., 2
однокомнатная квартира в Санкт-Петербурге по адресу: Уральская ул., 2

Продается однокомнатная квартира

Санкт-Петербург, Уральская ул., 2

1-комн.

квартира

50.3 м2

общая пл.

16.35 м2

жилая пл.

9/10

этаж

Metro

Василеостровская

Пешком

15 мин. пеш.

20 000 000 ₽

однокомнатная квартира в Санкт-Петербурге по адресу: Плесецкая ул., 2, строение 1
однокомнатная квартира в Санкт-Петербурге по адресу: Плесецкая ул., 2, строение 1
однокомнатная квартира в Санкт-Петербурге по адресу: Плесецкая ул., 2, строение 1
однокомнатная квартира в Санкт-Петербурге по адресу: Плесецкая ул., 2, строение 1
однокомнатная квартира в Санкт-Петербурге по адресу: Плесецкая ул., 2, строение 1
однокомнатная квартира в Санкт-Петербурге по адресу: Плесецкая ул., 2, строение 1

Продается однокомнатная квартира

Санкт-Петербург, Плесецкая ул., 2, строение 1

1-комн.

квартира

47.9 м2

общая пл.

12.8 м2

жилая пл.

7/13

этаж

Metro

Комендантский проспект

На транспорте

30 мин. тр.

16 000 000 ₽

Показать еще

Политика конфиденциальности Оплата

ОГРНИП 318784700042521

© 2026 Агентство недвижимости «ЭВО»