однокомнатная квартира в Санкт-Петербурге по адресу: Будапештская ул., 2, к 1, литера 1

Background Main
Background Main
Background Main
Background Main
Background Main
Background Main
Background Main
Background Main
Background Main
Background Main
Background Main
Background Main
Background Main
Background Main
Background Main
Background Main
Background Main
Background Main
Background Main
Background Main
Background Main
Background Main
Background Main

10 500 000 ₽

1-комн.

квартира

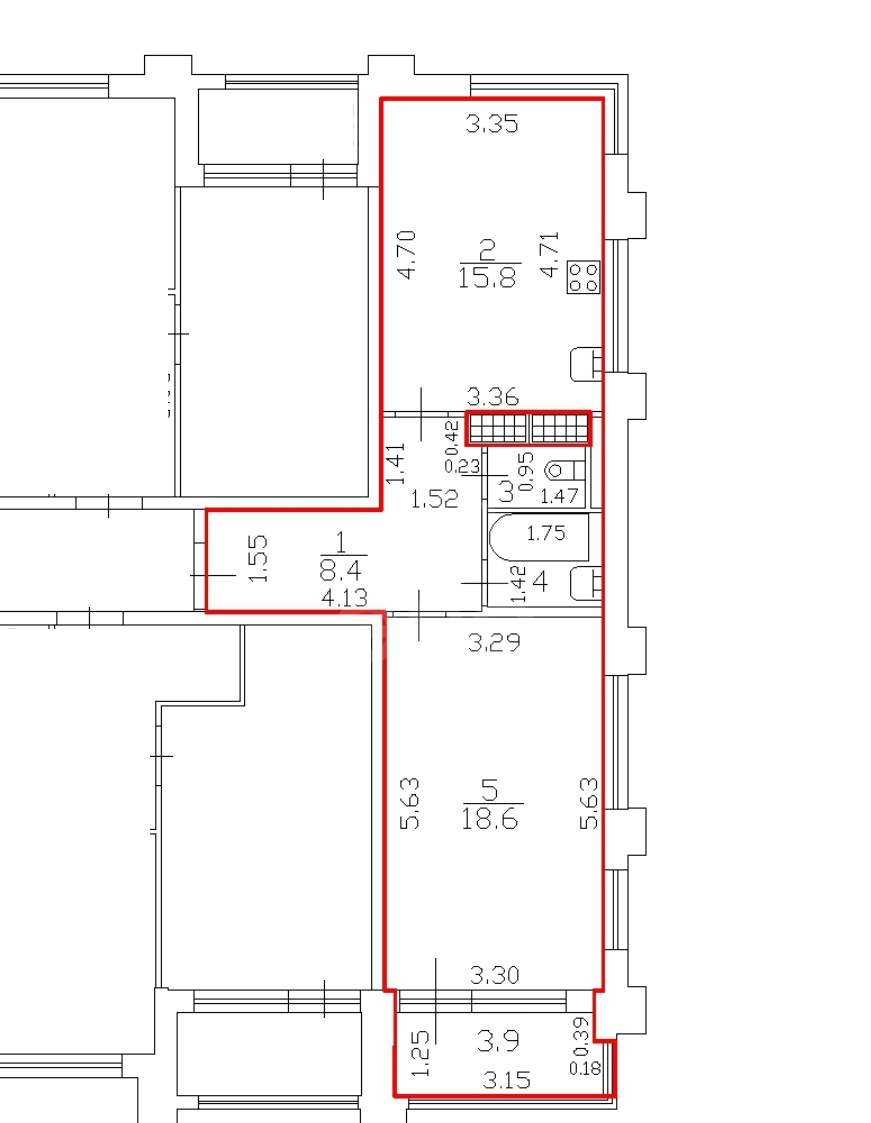
46.70 м2

общая пл.

18.6 м2

жилая пл.

19/20

этаж

Санкт-Петербург, Будапештская ул., 2, к 1, литера 1

M

Бухарестская

Пешком

10 мин. пеш.

Подробнее о квартире

Данный объект уже продан, но мы можем подобрать вам подобный.

Арт. 55827060 СУПЕР ПРЕДЛОЖЕНИЕ!!
Продаётся полностью укомплектованная для проживания 1комнатная квартира! Большая площадь – 46.7 кв.м. В квартире сделан качественный дорогой ремонт, европейские материалы.
Кухня-гостиная 15.8 кв.м поделена на обеденную зону и зону отдыха. Встроенная техника. Настенное панно из эко материалов. Комната 18.6 кв.метров с выходом на лоджию, где обустроена зона для работы (окна в пол). Дизайнерская мебель.
Эксклюзивный вариант – обилие света, пространства, воздуха. В каждом помещении кондиционер и ионизатор воздуха. Множество бытовых гаджетов.
В ванной комнате инсталляция, гигиенический душ, просторна ванна с гидромассажем. В прихожей – встроенные шкафы.
1 взрослый собственник. Есть обременение. Реальному покупателю будет ряд бонусов!
Дом построен в 2019 году, своя закрытая территория с детской площадкой и тренажёрами для воркаут. Есть подземный паркинг. В доме находится продуктовый магазин, аптека, управляющая компания.
В шаговой доступности – ТК РИО. Отличная инфраструктура.
ЗВОНИТЕ! Расскажу всё подробно, отвечу на все вопросы. Просмотры по договоренности.

Похожие объекты

однокомнатная квартира в Санкт-Петербурге по адресу: Уральская ул., 2
однокомнатная квартира в Санкт-Петербурге по адресу: Уральская ул., 2
однокомнатная квартира в Санкт-Петербурге по адресу: Уральская ул., 2
однокомнатная квартира в Санкт-Петербурге по адресу: Уральская ул., 2
однокомнатная квартира в Санкт-Петербурге по адресу: Уральская ул., 2
однокомнатная квартира в Санкт-Петербурге по адресу: Уральская ул., 2

Продается однокомнатная квартира

Санкт-Петербург, Уральская ул., 2

1-комн.

квартира

50.3 м2

общая пл.

16.35 м2

жилая пл.

9/10

этаж

Metro

Василеостровская

Пешком

15 мин. пеш.

20 000 000 ₽

однокомнатная квартира в Санкт-Петербурге по адресу: Плесецкая ул., 2, строение 1
однокомнатная квартира в Санкт-Петербурге по адресу: Плесецкая ул., 2, строение 1
однокомнатная квартира в Санкт-Петербурге по адресу: Плесецкая ул., 2, строение 1
однокомнатная квартира в Санкт-Петербурге по адресу: Плесецкая ул., 2, строение 1
однокомнатная квартира в Санкт-Петербурге по адресу: Плесецкая ул., 2, строение 1
однокомнатная квартира в Санкт-Петербурге по адресу: Плесецкая ул., 2, строение 1

Продается однокомнатная квартира

Санкт-Петербург, Плесецкая ул., 2, строение 1

1-комн.

квартира

47.9 м2

общая пл.

12.8 м2

жилая пл.

7/13

этаж

Metro

Комендантский проспект

На транспорте

30 мин. тр.

16 000 000 ₽

двухкомнатная квартира в Санкт-Петербурге по адресу: Матроса Железняка ул., 55, литера А
двухкомнатная квартира в Санкт-Петербурге по адресу: Матроса Железняка ул., 55, литера А
двухкомнатная квартира в Санкт-Петербурге по адресу: Матроса Железняка ул., 55, литера А
двухкомнатная квартира в Санкт-Петербурге по адресу: Матроса Железняка ул., 55, литера А
двухкомнатная квартира в Санкт-Петербурге по адресу: Матроса Железняка ул., 55, литера А
двухкомнатная квартира в Санкт-Петербурге по адресу: Матроса Железняка ул., 55, литера А

Продается двухкомнатная квартира

Санкт-Петербург, Матроса Железняка ул., 55, литера А

2-комн.

квартира

44.6 м2

общая пл.

28.9 м2

жилая пл.

3/5

этаж

Metro

Пионерская

Пешком

15 мин. пеш.

8 800 000 ₽

Показать еще

Политика конфиденциальности Оплата

ОГРНИП 318784700042521

© 2026 Агентство недвижимости «ЭВО»