комната в Санкт-Петербурге по адресу: Бронницкая ул., 10, литера А

Background Main
Background Main
Background Main
Background Main
Background Main
Background Main
Background Main
Background Main
Background Main
Background Main
Background Main
Background Main

4 550 000 ₽

Комната

208.6 м2

общая пл.

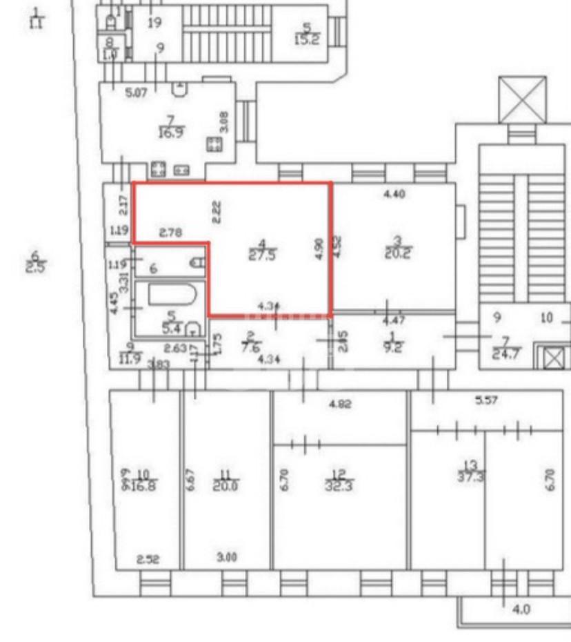
27.5 м2

жилая пл.

5/5

этаж

Санкт-Петербург, Бронницкая ул., 10, литера А

Подробнее о квартире

Данный объект уже продан, но мы можем подобрать вам подобный.

Арт. 74007138
Предлагается к продаже комната в пешей доступности к 3-м станциям метро разных веток! Технологический институт - 3 мин пешком/ Пушкинская-Витебский вокзал - 10 мин. пешком/ Звенигородская - 14 мин. пешком

Преимуществом данной комнаты является её расположение и планировка, комната граничит с кухней и санузлом

ОБ ОБЪЕКТЕ:
- Адрес: Санкт-Петербург, ул. Бронницкая, дом 10, литера А
- 5/5 этаж кирпичного многоквартирного жилого дома 1899 г.п. Есть лифт
- Площадь комнаты 27,5 кв.м., расположена в действующей 6-комнатной коммунальной квартире, ОП квартиры 208,6 кв.м., кухня 16,9 кв.м.
- В квартире разделённый с/у с полноценной ванной комнатой
- Дом газифицирован, горячая вода центральная
- В комнате одно окно, выходит во двор
- В квартире проживают только собственники
- Высота потолков 2.88 м.
- Приятная парадная без посторонних запахов

ИФРАСТРУКТУРА:
- Помимо станций метро в пешей доступности так же расположены остановки наземного общественного транспорта
- Рядом с домом есть всё необходимое: учебные заведения, медучреждения, общепит, места для отдыха и занятий спортом и т.д.

ЮР. ЧАСТЬ:
- Прямая продажа
- Один взрослый собственник
- Без обременений и ограничений
- К сделке готовы, от сособственников отказы получены
- Городская прописка

Видеообзор

Похожие объекты

комната в Санкт-Петербурге по адресу: Смоленская ул., 31/20
комната в Санкт-Петербурге по адресу: Смоленская ул., 31/20
комната в Санкт-Петербурге по адресу: Смоленская ул., 31/20
комната в Санкт-Петербурге по адресу: Смоленская ул., 31/20
комната в Санкт-Петербурге по адресу: Смоленская ул., 31/20
комната в Санкт-Петербурге по адресу: Смоленская ул., 31/20

Продается комната

Санкт-Петербург, Смоленская ул., 31/20

Комната

723.7 м2

общая пл.

17.5 м2

жилая пл.

2/6

этаж

Metro

Фрунзенская

Пешком

8 мин. пеш.

4 550 000 ₽

комната в Санкт-Петербурге по адресу: Донская ул., 19, литера А
комната в Санкт-Петербурге по адресу: Донская ул., 19, литера А
комната в Санкт-Петербурге по адресу: Донская ул., 19, литера А
комната в Санкт-Петербурге по адресу: Донская ул., 19, литера А
комната в Санкт-Петербурге по адресу: Донская ул., 19, литера А
комната в Санкт-Петербурге по адресу: Донская ул., 19, литера А

Продается комната

Санкт-Петербург, Донская ул., 19, литера А

Комната

97 м2

общая пл.

12.6 м2

жилая пл.

3/4

этаж

Metro

Василеостровская

Пешком

15 мин. пеш.

1 970 000 ₽

комната в Санкт-Петербурге по адресу: Каменноостровский проспект, 54/31, литера А
комната в Санкт-Петербурге по адресу: Каменноостровский проспект, 54/31, литера А
комната в Санкт-Петербурге по адресу: Каменноостровский проспект, 54/31, литера А
комната в Санкт-Петербурге по адресу: Каменноостровский проспект, 54/31, литера А
комната в Санкт-Петербурге по адресу: Каменноостровский проспект, 54/31, литера А
комната в Санкт-Петербурге по адресу: Каменноостровский проспект, 54/31, литера А

Продается комната

Санкт-Петербург, Каменноостровский проспект, 54/31, литера А

Комната

231.3 м2

общая пл.

26.7 м2

жилая пл.

4/6

этаж

Metro

Петроградская

Пешком

7 мин. пеш.

5 100 000 ₽

Показать еще

Политика конфиденциальности Оплата

ОГРНИП 318784700042521

© 2026 Агентство недвижимости «ЭВО»