коммерция в Санкт-Петербурге по адресу: Гарболовское ш., строение 1В

Background Main
Background Main
Background Main
Background Main
Background Main
Background Main
Background Main
Background Main
Background Main
Background Main
Background Main
Background Main
Background Main
Background Main
Background Main
Background Main
Background Main
Background Main
Background Main

65 000 ₽

Коммерция

131.1 м2

общая пл.

1/2

этаж

Санкт-Петербург, Гарболовское ш., строение 1В

Подробнее о квартире

Данный объект уже сдан, но мы можем подобрать вам подобный.

Арт. 64690518
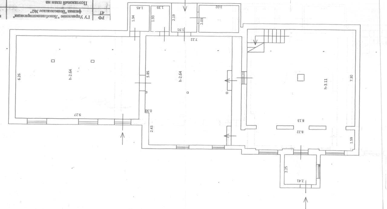
Сдаётся в аренду многофункциональное помещение свободного назначения (ПСН) с отдельным входом.
Располагается во Всеволжском районе Ленинградской области по адресу: деревня Куйвози, Гарболовское шоссе, строение 1В.
В 5-ти минутах езды до станции Грузино.
Хороший автомобильный трафик. Напротив автобусная остановка.
О помещении:
Общая площадь 131.1 кв.м.
Высота потолка 2.64 м., 3.11 м.
15 кВт электроэнергии с возможностью увеличения под потребности арендатора.
Отопительная система присутствует.
Наличие мокрой точки.
Об условиях:
Арендная ставка 620 рублей за м² в мес. + КУ.
Без комиссии и переплат.
Обеспечительный платёж - 38 000 рублей.
Предоставляем арендные каникулы на ремонт и заезд.
Срок договора от 11 месяцев.
Варианты назначения помещений:
Магазины, сервис, бытовые услуги, различные мастерские, и другое.
Звоните, чтобы узнать больше о данном предложении и назначить просмотр!

Видеообзор

Похожие объекты

коммерция в Санкт-Петербурге по адресу: Полтавская ул., 5/29, литера Б
коммерция в Санкт-Петербурге по адресу: Полтавская ул., 5/29, литера Б
коммерция в Санкт-Петербурге по адресу: Полтавская ул., 5/29, литера Б
коммерция в Санкт-Петербурге по адресу: Полтавская ул., 5/29, литера Б
коммерция в Санкт-Петербурге по адресу: Полтавская ул., 5/29, литера Б
коммерция в Санкт-Петербурге по адресу: Полтавская ул., 5/29, литера Б

Сдается коммерция

Санкт-Петербург, Полтавская ул., 5/29, литера Б

Коммерция

75 м2

общая пл.

1/3

этаж

Metro

Площадь Восстания

Пешком

4 мин. пеш.

95 000 ₽

студия в Санкт-Петербурге по адресу: Муринская дорога., 25, к 2, строение 1
студия в Санкт-Петербурге по адресу: Муринская дорога., 25, к 2, строение 1
студия в Санкт-Петербурге по адресу: Муринская дорога., 25, к 2, строение 1
студия в Санкт-Петербурге по адресу: Муринская дорога., 25, к 2, строение 1
студия в Санкт-Петербурге по адресу: Муринская дорога., 25, к 2, строение 1
студия в Санкт-Петербурге по адресу: Муринская дорога., 25, к 2, строение 1

Сдается студия

Санкт-Петербург, Муринская дорога., 25, к 2, строение 1

Студия

20 м2

общая пл.

16 м2

жилая пл.

17/17

этаж

Metro

Девяткино

На транспорте

20 мин. тр.

20 000 ₽

студия в Санкт-Петербурге по адресу: Кушелевская дорога., 6, к 1, строение 1
студия в Санкт-Петербурге по адресу: Кушелевская дорога., 6, к 1, строение 1
студия в Санкт-Петербурге по адресу: Кушелевская дорога., 6, к 1, строение 1
студия в Санкт-Петербурге по адресу: Кушелевская дорога., 6, к 1, строение 1
студия в Санкт-Петербурге по адресу: Кушелевская дорога., 6, к 1, строение 1
студия в Санкт-Петербурге по адресу: Кушелевская дорога., 6, к 1, строение 1

Сдается студия

Санкт-Петербург, Кушелевская дорога., 6, к 1, строение 1

Студия

30.2 м2

общая пл.

21.8 м2

жилая пл.

17/17

этаж

Metro

Лесная

Пешком

18 мин. пеш.

42 000 ₽

Показать еще

Политика конфиденциальности Оплата

ОГРНИП 318784700042521

© 2026 Агентство недвижимости «ЭВО»