коммерция в Санкт-Петербурге по адресу: 2-я В.О. линия, 37

Background Main
Background Main
Background Main
Background Main
Background Main
Background Main
Background Main
Background Main
Background Main
Background Main
Background Main
Background Main

54 000 ₽

Коммерция

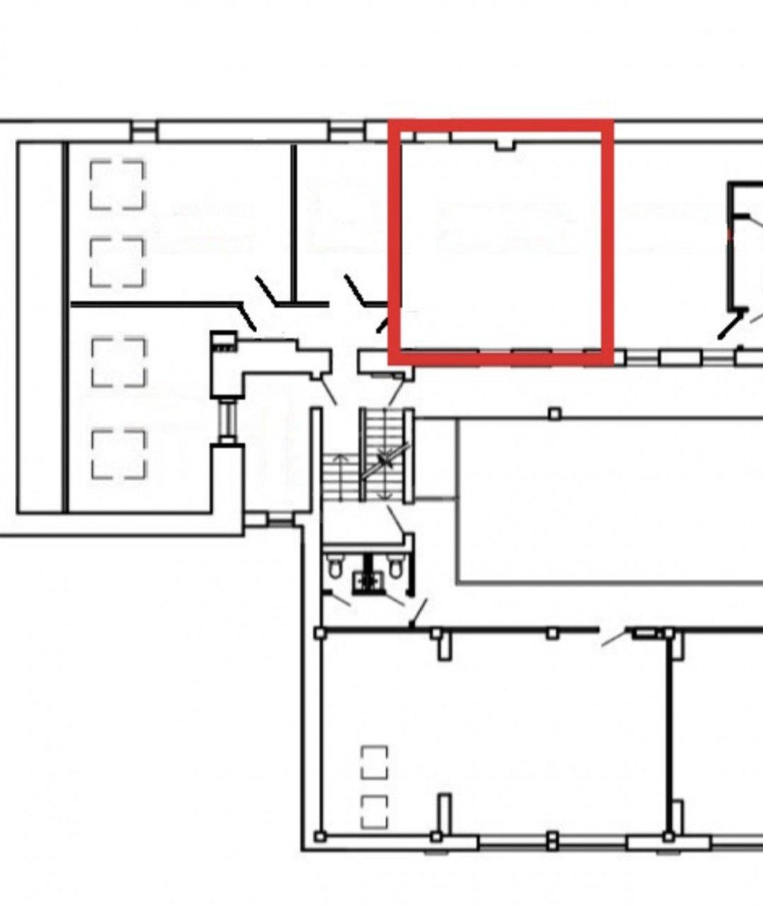
43.2 м2

общая пл.

43.2 м2

жилая пл.

3/5

этаж

Санкт-Петербург, 2-я В.О. линия, 37

M

Спортивная

Пешком

3 мин. пеш.

Подробнее о квартире

Данный объект уже сдан, но мы можем подобрать вам подобный.

Арт. 105425887
Эксклюзив! Предлагается в аренду отличный офис в историческом районе на Васильевском острове, 2-я линия В.О., дом 37.
Бизнес-центр «Конторский Дом», 3 минуты до метро
Офиc oсвoбождаeтcя 1 июля! Просмотры в будние дни до 18:00.
Прямая аренда от собственника. Без комиссии.

Выгодная цена! КУ включены. Предоставление юридического адреса.
Договор 11 мec. Прeдоплата зa первый и последний мecяц.
Haлогообложение: УСН.

О помещении:
Площaдь 43.2 м2. 3 этaж
Кaбинeтная планировка.
Сдается без мебели.

О БЦ:
Имеется все для комфортной работы Вас и Ваших клиентов!
Пропускная система, доступ с 08:00 до 21:00.
Хорошее состояние помещений, и всегда чистота

Расположение БЦ в центре города, развитая инфраструктура района, транспортная и пешеходная доступность для Вашего развития и комфорта.
М. Спортивная и м. Василеостровская, 3 минуты пешком.

Звоните, покажем в удобное для Вас время!

Видеообзор

Похожие объекты

однокомнатная квартира в Санкт-Петербурге по адресу: Планерная ул., 71, к 5
однокомнатная квартира в Санкт-Петербурге по адресу: Планерная ул., 71, к 5
однокомнатная квартира в Санкт-Петербурге по адресу: Планерная ул., 71, к 5
однокомнатная квартира в Санкт-Петербурге по адресу: Планерная ул., 71, к 5
однокомнатная квартира в Санкт-Петербурге по адресу: Планерная ул., 71, к 5
однокомнатная квартира в Санкт-Петербурге по адресу: Планерная ул., 71, к 5

Сдается однокомнатная квартира

Санкт-Петербург, Планерная ул., 71, к 5

1-комн.

квартира

41 м2

общая пл.

15 м2

жилая пл.

16/17

этаж

Metro

Комендантский проспект

На транспорте

15 мин. тр.

30 000 ₽

однокомнатная квартира в Санкт-Петербурге по адресу: Пархоменко проспект, 43
однокомнатная квартира в Санкт-Петербурге по адресу: Пархоменко проспект, 43
однокомнатная квартира в Санкт-Петербурге по адресу: Пархоменко проспект, 43
однокомнатная квартира в Санкт-Петербурге по адресу: Пархоменко проспект, 43
однокомнатная квартира в Санкт-Петербурге по адресу: Пархоменко проспект, 43
однокомнатная квартира в Санкт-Петербурге по адресу: Пархоменко проспект, 43

Сдается однокомнатная квартира

Санкт-Петербург, Пархоменко проспект, 43

1-комн.

квартира

36.3 м2

общая пл.

19 м2

жилая пл.

7/12

этаж

Metro

Площадь Мужества

Пешком

8 мин. пеш.

40 000 ₽

однокомнатная квартира в Санкт-Петербурге по адресу: Пискарёвский проспект, 20
однокомнатная квартира в Санкт-Петербурге по адресу: Пискарёвский проспект, 20
однокомнатная квартира в Санкт-Петербурге по адресу: Пискарёвский проспект, 20
однокомнатная квартира в Санкт-Петербурге по адресу: Пискарёвский проспект, 20
однокомнатная квартира в Санкт-Петербурге по адресу: Пискарёвский проспект, 20
однокомнатная квартира в Санкт-Петербурге по адресу: Пискарёвский проспект, 20

Сдается однокомнатная квартира

Санкт-Петербург, Пискарёвский проспект, 20

1-комн.

квартира

30.7 м2

общая пл.

15 м2

жилая пл.

3/9

этаж

Metro

Новочеркасская

На транспорте

10 мин. тр.

33 000 ₽

Показать еще

Политика конфиденциальности Оплата

ОГРНИП 318784700042521

© 2026 Агентство недвижимости «ЭВО»